VANDEHEY PASSIVE HOUSE ADDITION
This Passive House sits on a five mountain view hill in Forest Grove. The owners are using material from a house their grandfather built that is carefully salvaged, and treated by hand and then reinstalled for a continued life in their new forever home.
We paid attention to universal design concepts as well as the client’s desire for a great entertaining space that shows off the site’s majestic Pacific Northwest views.
Each window is strategicaly placed to frame a specific viewpoint. Instead of just “glazing everything”, are approach focsus the relationship the home has with the landscape, acheives the owner’s deep sustainabiltiy goals, minimizes glare from overglazing and helps protect the owner’s privacy. All while looking amazing!
A generous, semi-contained front porch helps counter the strong winds that are often blowing on the site as well gives a comfortable place to change muddy boots after a hike in the wood.
Visually, the ebony Shushugi Ban siding is contrasted by the porch’s warm cedar. The styling of the cover allows for both sitelines and comfort.
The wrap around main deck allows for easy access for visitors during get togethers, as well as ease of any maintenance on this rugged site. You want a clean window when looking out at five of the region’s majestic mountaintops!
Main Floor Design Details
Elevated dog wash in mudroom (no bending over)
Generous indoor and outdoor entertaining
A gourmet kitchen with sizable pantry
Walk-in closet and an office/TV room
His & hers comodes
Currated views to multiple mountaintop vistas
Bedroom on the Main Floor
No barrier entry
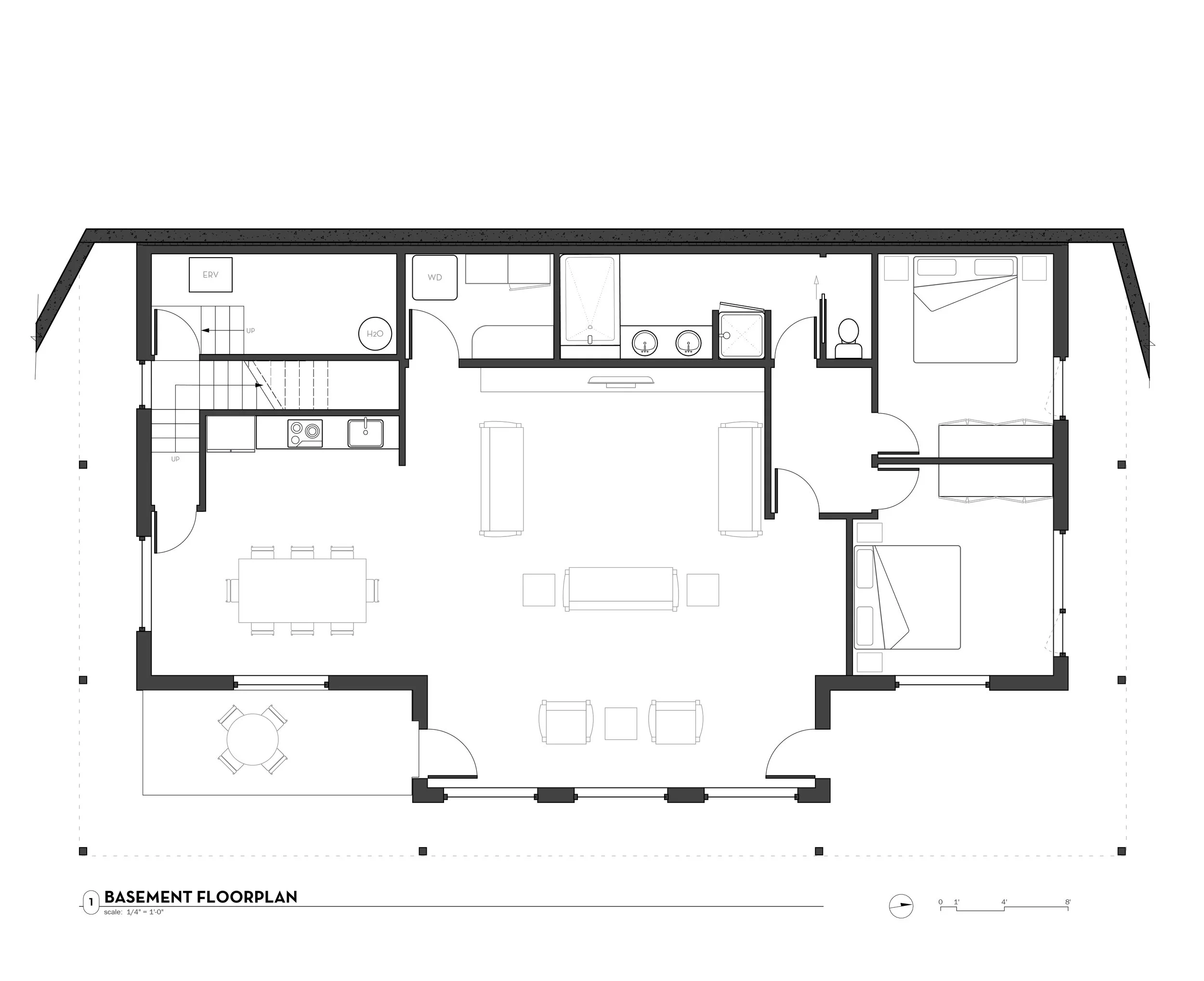
Basement Design Detials
Full kitchenette
Indoor & outdoor dining areas
Generous flex space
Sound seperated bedrooms
Nine foot ceiling heigth
Isolated mechanical and laundry rooms
Private entry for live in help or guests
Images From The Site
We only designed this project. The site analysis images are ours, but the building images are from teh homeowners, all rights reserved.
